Concept
Quelque part, dans les vastes étendues américaines, coule la rivière de l’ours noir. C’est une terre de liberté, riche en possibilités et en promesses. Autrefois habitée par des hommes, qui en ont exploité les richesses avec plus ou moins de sagesse. La rivière de l’ours noir a été oubliée des hommes, permettant aux animaux de revenir.
C’est un monde nouveau à redécouvrir, à nouveau riche, à nouveau sauvage.
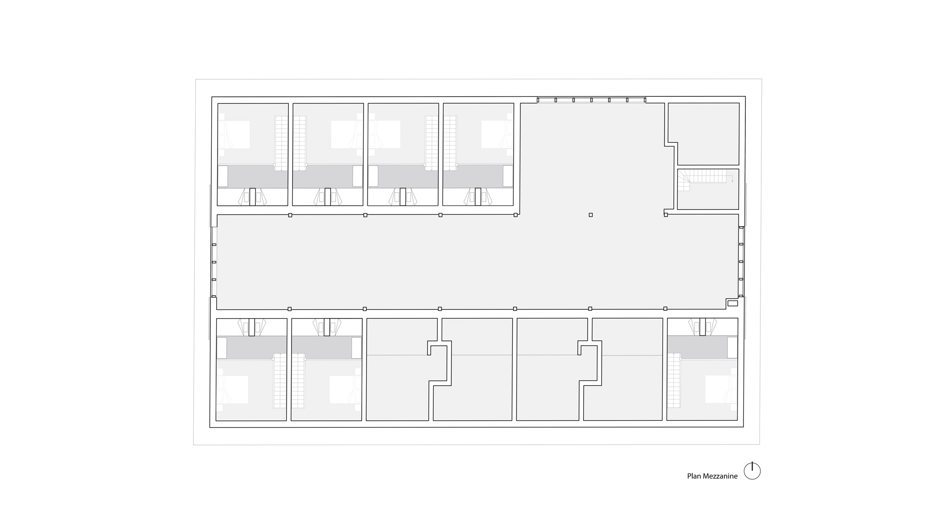
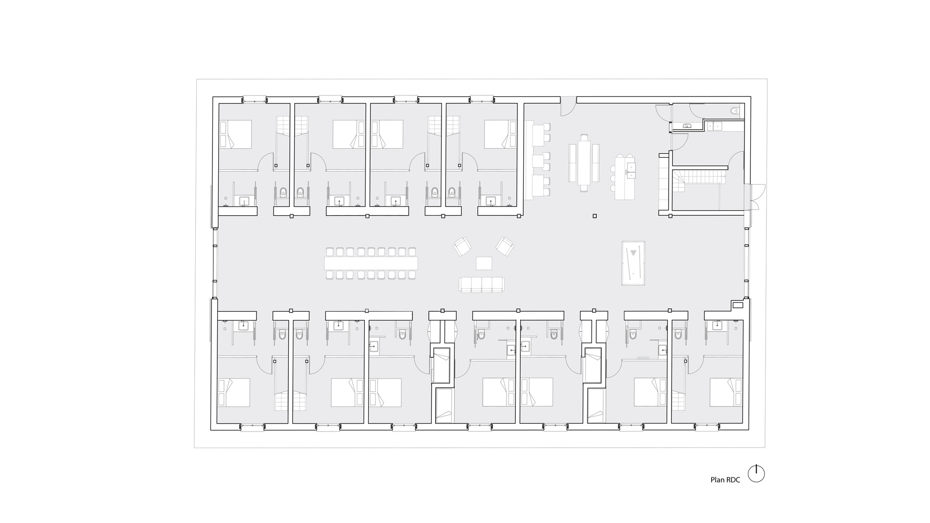
Parmi les 17 lodges des ours noirs, 2 sont accessibles aux personnes à mobilité réduite (PMR).
— Parc Animalier Sainte-Croix
L’objectif de ce projet est d’offrir aux visiteurs une expérience dans un environnement forestier, permettant une véritable rencontre avec la faune. Les visiteurs peuvent passer la nuit dans les cabanes qui proposent une immersion totale dans la nature.

L’eau joue un rôle central dans ce projet, attirant les ours tout en régulant la distance de sécurité, tandis que la topographie surélevée de la zone des visiteurs assure une vue panoramique sécurisée préservant l’équilibre écologique.

Équipe
Pierre Lecomte, Luc Planson, Anne Gaudriault.














